Filtri
Perfeziona la ricerca, avvicinati a ciò che cerchi
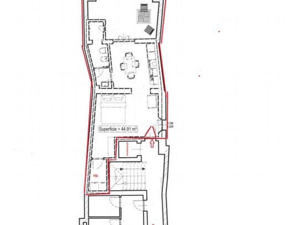
Quadrilocale via Alberto Bassi, Castel San Pietro Terme
PRIVATO vende in contesto tranquillo appartamento ristrutturato giugno 2016 posto al piano secondo rialzato ed ultimo, suddiviso in tre camere da letto due bagni con doccia, sala con cucina, climatizzatore con pompa di calore su ambiente giorno e notte, antenna centralizzata e cavo satellitare. Finestre in legno con doppi vetri, riscaldamento autonomo, due terrazze, ampia cantina e garage. Ampio giardino esterno condominiale su tre lati.. esternamente un parco. A mt 200 si trovano scuola materna, nido e scuole elementari , centro commerciale . Comodo a tutti i servizi autobus a pochi passi.
Prezzo 200.000,00 € 1.667 €/m2
ID. 220846
Vendita
200.000,00 €
120 m2
Non ancora disponibile
Prezzo immobile:
Importo mutuo €
Tasso interesse %
Durata mutuo
Importo rata mensile
Interessi
Costo totale
Appartamento • Castel San Pietro Terme • Privato
48 m2 • 3.000,00 €
120 m2 • 199.000,00 €
85 m2 • 220.000,00 €
101 m2 • 170.000,00 €
Appartamento • Via Pilastrino, Castel San Pietro Terme • Privato
65 m2 • 145.000,00 €
110 m2 • 169.000,00 €
127 m2 • 285.000,00 €
176 m2 • 400.000,00 €
75 m2 • 149.000,00 €