Filtri
Perfeziona la ricerca, avvicinati a ciò che cerchi
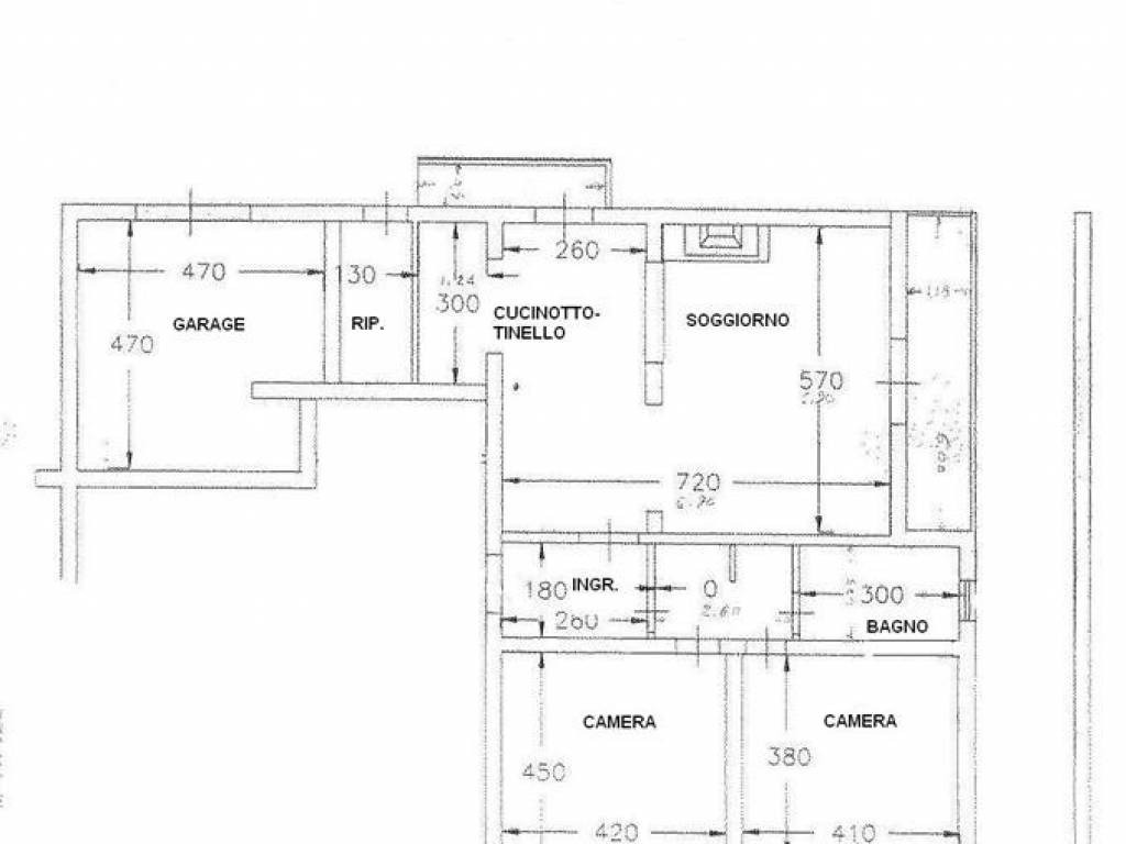
Appartamento via Ugo Foscolo, San Giuliano Terme
LA FONTINA - Ubicato in tranquilla strada residenziale, lontano dalla via trafficata ma ad un passo dalla città, app.to a piano rialzato di piccolo fabbricato, internamente composto da ingresso tradizionale, spaziosa sala pranzo con cucinotto a vista, dispensa e balcone, sala con balcone, camera singola o studio, disimpegno notte con due matrimoniali e bagno con vasca e finestra. CIrcondato su tre lati da giardino di proprietà, con accesso diretto e recintato. Garage. T.aut. Ottima soluzione che unisce la vicinanza alla città con l'indipendenza.
050 7620 051
Prezzo 265.000,00 € 2.246 €/m2
ID. 535849
Vendita
265.000,00 €
118 m2
Non ancora disponibile
Prezzo immobile:
Importo mutuo €
Tasso interesse %
Durata mutuo
Importo rata mensile
Interessi
Costo totale
Appartamento • San Giuliano Terme • Privato
120 m2 • 170.000,00 €
90 m2 • 169.000,00 €
Appartamento • Via Ippolito Nievo, San Giuliano Terme • Privato
120 m2 • 290.000,00 €
85 m2 • 180.000,00 €
110 m2 • 265.000,00 €
63 m2 • 98.000,00 €
40 m2 • 100.000,00 €
145 m2 • 320.000,00 €
115 m2 • 180.000,00 €